FABRYKA PERUN UL. GROCHOWSKA
FABRYKA PERUN UL. STANISŁAWA AUGUSTA
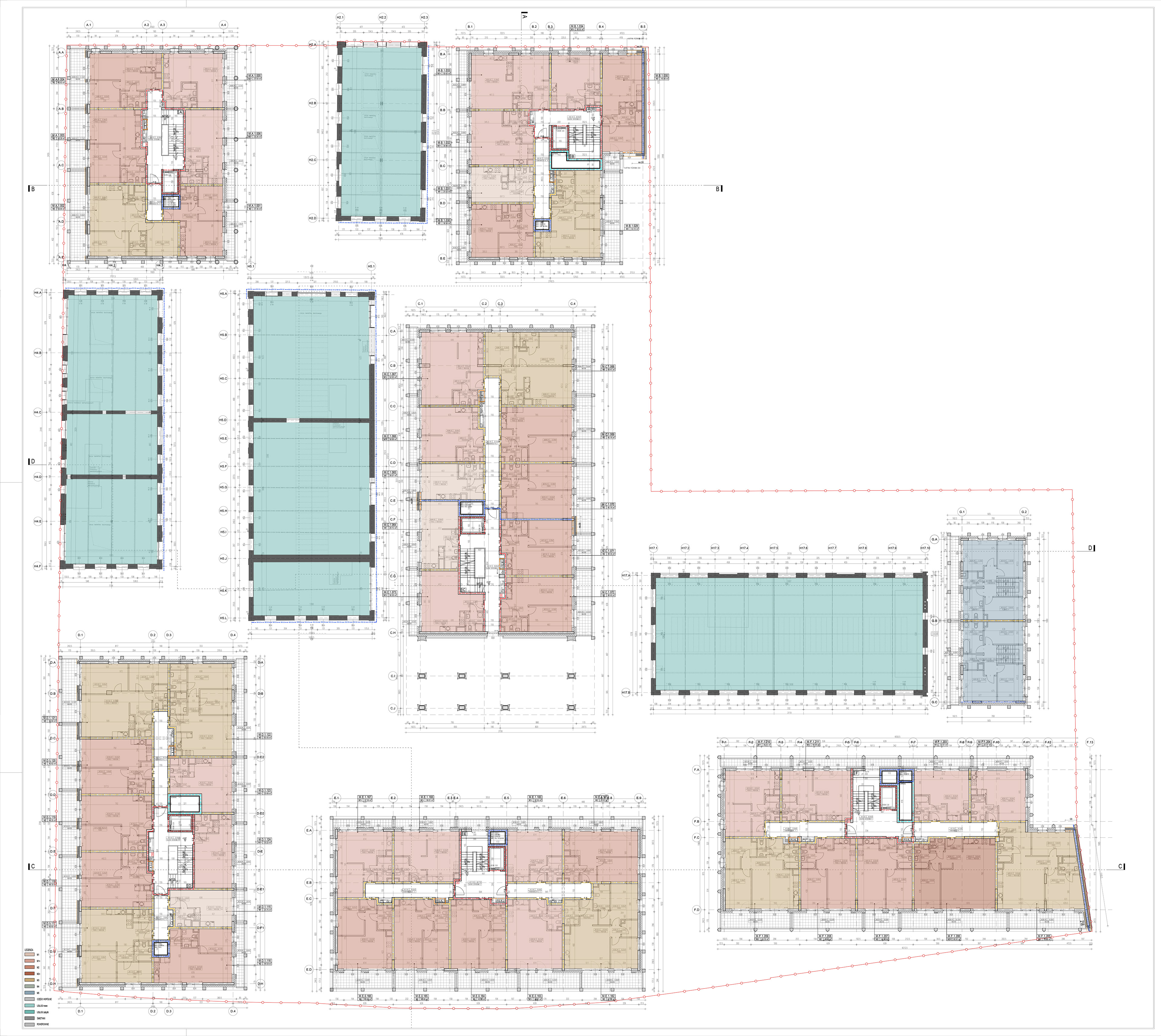
FABRYKA PERUN RZUT KOND. PARTERU
FABRYKA PERUN INW. TOWARZYSZĄCA
FABRYKA PERUN UL. GROCHOWSKA
FABRYKA PERUN RZUT KOND. 1 PIĘTRA
FABRYKA PERUN UL. GROCHOWSKA
FABRYKA PERUN DZIEDZINIEC
Inwestycja mieszkaniowa polegająca na budowie budynku mieszkalnego wielorodzinnego z usługami, garażem podziemnym, zagospodarowaniem terenu i infrastrukturą techniczną oraz przebudowa zabytkowych hal nr 2, 4, 5, 15 wraz ze zmianą sposobu użytkowania na cele usługowo-handlowe oraz inwestycji towarzyszącej polegającej na realizacji publicznego terenu zieleni urządzonej wraz z elementami małej architektury, zagospodarowaniem terenu, w tym infrastrukturą wypoczynkowo-rekreacyjną oraz infrastrukturą techniczną przy ul. Grochowskiej i Stanisława Augusta w Warszawie
FABRYKA PERUN UL. GROCHOWSKA
FABRYKA PERUN UL. STANISŁAWA AUGUSTA
FABRYKA PERUN RZUT KOND. PARTERU
FABRYKA PERUN INW. TOWARZYSZĄCA
FABRYKA PERUN UL. GROCHOWSKA
FABRYKA PERUN RZUT KOND. 1 PIĘTRA
FABRYKA PERUN UL. GROCHOWSKA
FABRYKA PERUN DZIEDZINIEC