OMULEWSK 24
OMULEWSKA 24
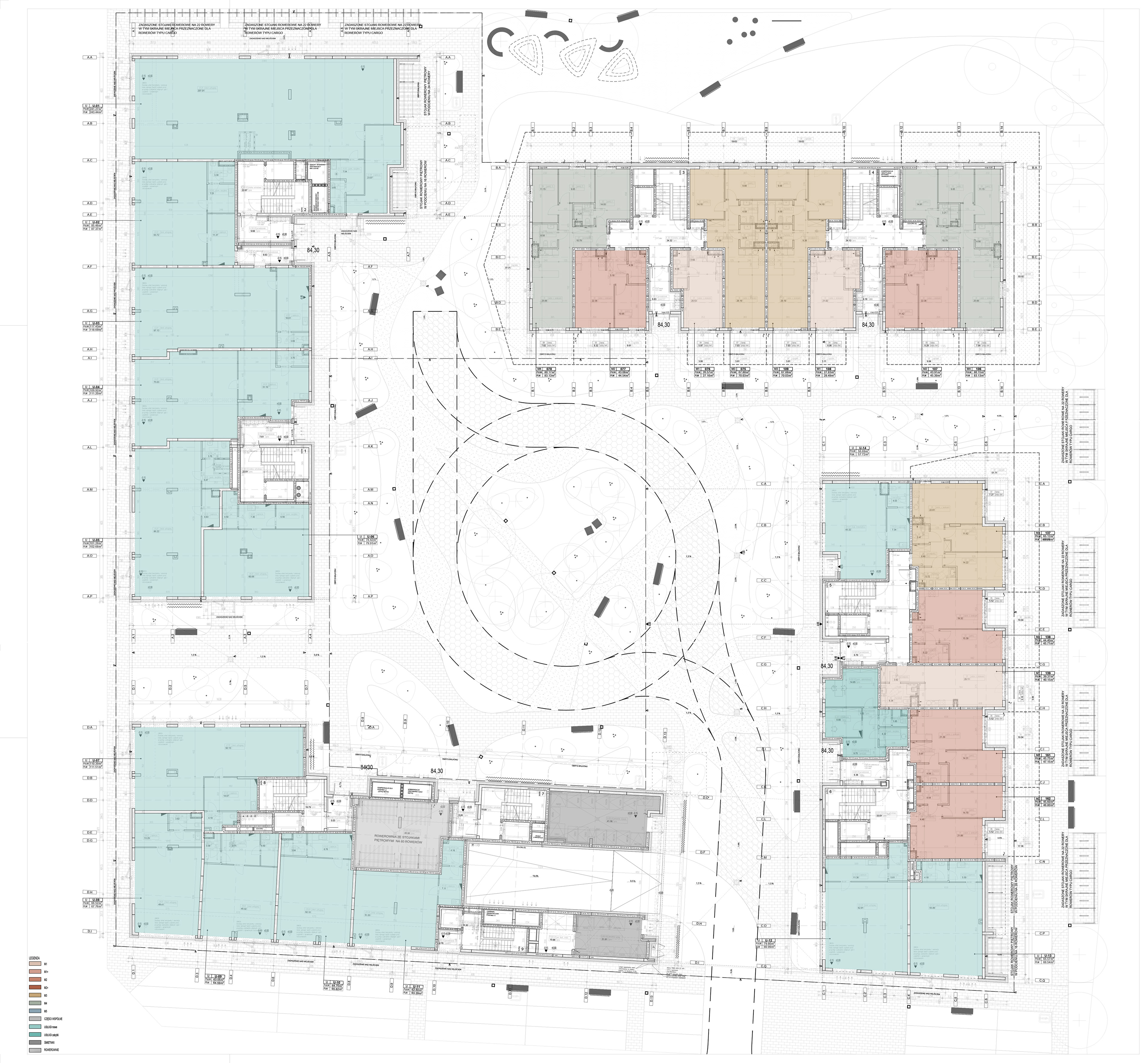
OMULEWSKA 24 RZUT KOND. PARTERU
OMULEWSKA 24
OMULEWSKA 24
OMULEWSKA 24 RZUT KOND. 1 PIĘTRA
OMULEWSKA 24
OMULEWSKA 24
Inwestycja mieszkaniowa polegająca na budowie budynku mieszkalnego wielorodzinnego z usługami, garażem podziemnym, zagospodarowaniem terenu i infrastrukturą techniczną przy ul. Omulewskiej 24 w Warszawie
OMULEWSK 24
OMULEWSKA 24
OMULEWSKA 24 RZUT KOND. PARTERU
OMULEWSKA 24
OMULEWSKA 24
OMULEWSKA 24 RZUT KOND. 1 PIĘTRA
OMULEWSKA 24
OMULEWSKA 24